서울 은평 [내추럴 – N54- 40호]

  • URL
  • 2015-06-10
  • 12862

  • CONCEPT

    석재와 세라믹사이딩 그리고 징크 몰딩의 조합으로
    단단하고 중후한 외관이 포인트로 디자인 되었다.
    시간이 지날수록 재료의 색상이 진해지면서
    외관의 멋은 더욱 살아난다.
    실이 많은 1층은 데드스페이스를 줄여
    최대한 넓은공간감을 느끼게 설계했으며,
    가족들의 공간인 2층은
    건축주의 요구를 최대한 반영한 설계로
    가족구성원 모두 만족하는
    평면구성으로 마무리 하였다.
  • SUMMARY

    • 총면적     :   179.34㎡(54.25평)
      1층             :   103.18 ㎡(31.21평)
      2층             :   68.24 ㎡(20.64평)
      1층포치   :   7.92 ㎡(2.40평)
    • 구조              :   경량목구조
      지붕              :   아스팔트 슁글
      외부마감   :   스타코 ,세라믹 사이딩, 파벽돌
      내부마감   :   LG 실크벽지
      창호              :   LG 시스템 창호

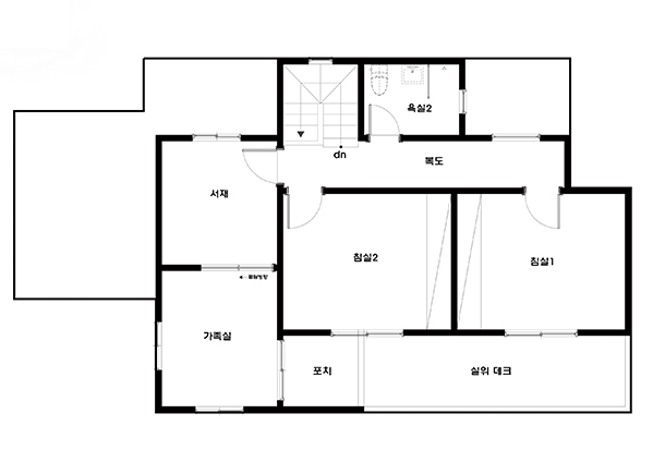
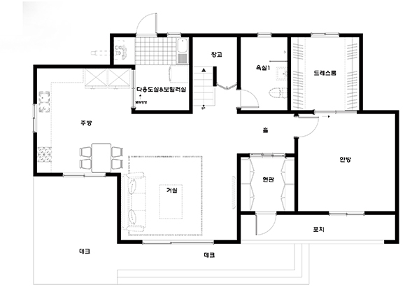
도면

  • 1st FLOOR

  • 2nd FLOOR




 

 내추럴풍 N54- 40호

[Natural]

 

 

 

 

 

 





 

이 주택의 연관정보 보기

[자세히보기]

개인정보 처리방침

  • - 개인정보 제공받는자 :
  • - 개인정보 수집 범위 : 이름, 핸드폰
  • - 개인정보 수집이용 목적 : 검사 및 상담에 활용(전화)
  • - 개인정보 보유 및 이용기간 : 수집 및 이용 목적 달성 시까지만 보유
닫기
신청하기
1566-0495
  • 이름

  • 연락처

개인정보처리방침 동의 [자세히보기]

상담신청

개인정보 처리방침

  • - 개인정보 제공받는자 :
  • - 개인정보 수집 범위 : 이름, 핸드폰
  • - 개인정보 수집이용 목적 : 검사 및 상담에 활용(전화)
  • - 개인정보 보유 및 이용기간 : 수집 및 이용 목적 달성 시까지만 보유
닫기